Shared Ownership

‘Coming Soon’ Darwins Edge, Shrewsbury SY3.

Back to all Shared Ownership

Address/Development name

Darwins Edge, Hereford Road, Shrewsbury SY3 9NB

Price

£TBC

Notice

Coming Soon, 4 new plot’s.
Two, 2-bed-End of Terrace homes.
Two, 3-bed-Mid Terrace homes.
We are unable to accept applications until the homes are released for sale.
Don’t miss out, register your interest here and we’ll email upon release-
REGISTER for Shared Ownership Updates

Local area

There is no local criteria for these plots.

Homes in Darwin’s Edge are part of an appealing development in Shrewsbury, Shropshire. Darwin’s Edge is ideally placed, with both the A49 and Shrewsbury railway station a 10-minute drive away from the development. The site backs on to the Meole Brace Retail Park where you can find shops, food outlets and much more.

Description

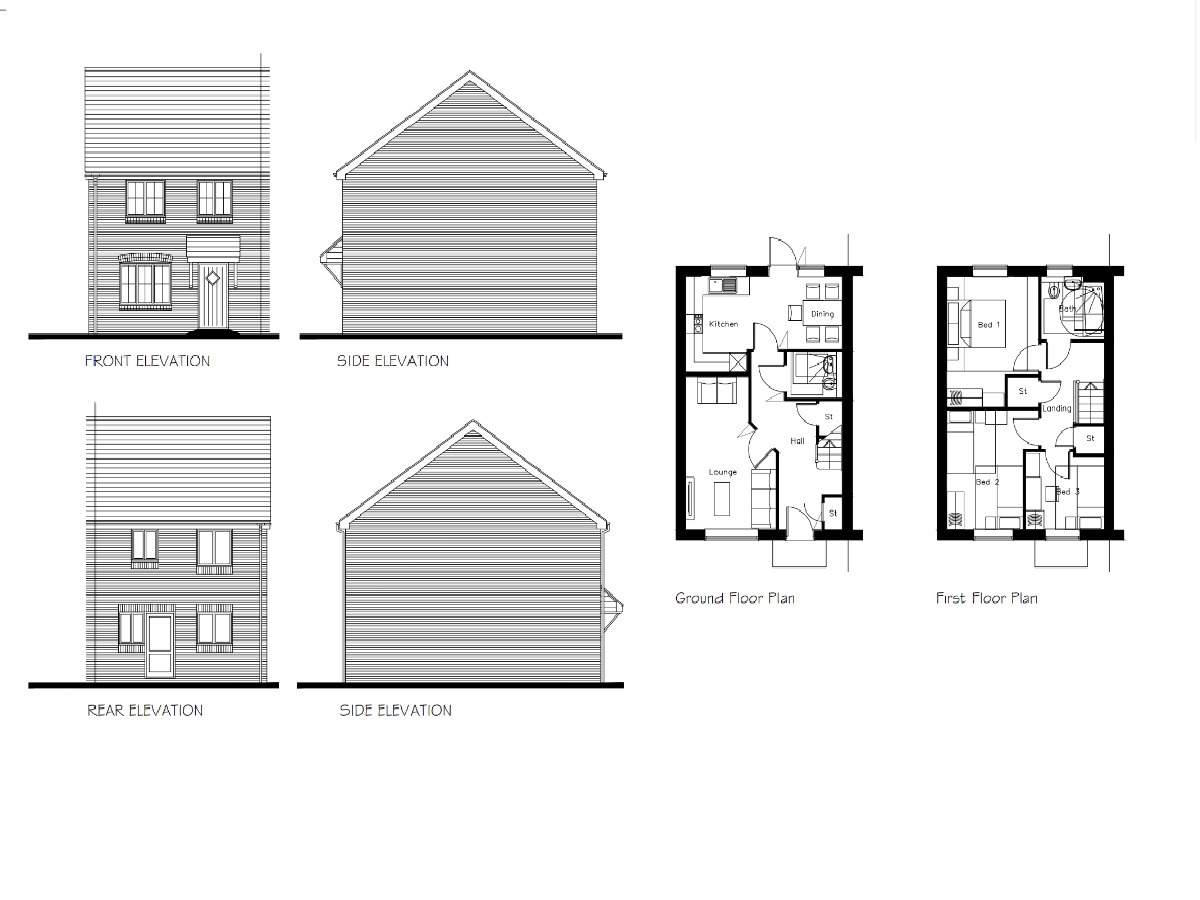
Plot’s 61 & 62- Mid Terrace – Manciple House Type.

To the front of these properties is the hallway, a convenient store room and downstairs WC. Off the hallway is access to the open plan kitchen/dinner, which is a great space to relax with the family. To the other side of the hall is the living area which benefits from a patio doors opening out onto the garden, which makes this room a perfect space for entertaining. The gardens come turfed and fenced. Upstairs there are two good sized bedrooms and a family bathroom.
These energy-efficient homes have gas central heating and solar panels. They also have 2 off-road parking spaces and a car charging point.

Plot’s 60 & 63- End of Terrace – Draftsman House Type.

To the front of these properties is the hallway and stairs. Leading off  the hallway is access to the lounge, and the convenient downstairs WC, moving on to the rear of the property is the kitchen/dining area which benefits from a patio door opening out onto the garden, which is a perfect space for entertaining. The gardens come turfed and fenced. Upstairs there are three good sized bedrooms, two double and one single, and of course, The main family bathroom .
These energy-efficient homes have gas central heating and solar panels. They also have 2 off-road parking spaces and a car charging point.

Note:
Floor plans–for left/right-handed plots the layout may mirror the image shown.
These homes have been built by Bellway Homes.
Some images used are for illustration purposes only and may not show the exact property.

You can only apply for these homes when they have been released for sale.

To avoid missing out, register your interest here and we’ll email you upon release-
REGISTER for Shared Ownership Updates

Property type

To be confirmed

Property construction

Brick and Block with pitched tiled roof.

Bedrooms

Parking

2 off-road parking space

Property features

2 and 3-bedrooms. Modern kitchen/diner. Lounge. Built-in oven, hob and extractor hood. Flooring to kitchen area, downstairs WC and family bathroom. Convenient separate downstairs WC. Family bathroom. Private turfed and fenced garden. Solar Panels. 2 off-road parking spaces. 1 standard charging point. Approx. Gross Internal Floor Area-73.21 sqm & 85.47sqm.

Rooms

  • Lounge
  • Lounge/diner
  • Kitchen/diner
  • Family bathroom

Accessibility/Adaptations

No

Staircasing allowed

Yes up to 100%

Grant funded

No

Local connection

No

The local connection criteria is at least one of the following: 

  • Your parents were permanent residents in Lichfield District when you were born.
  • As a child you lived in Lichfield District for at least 5 years and attended a local school. 
  •  You have previously lived in Lichfield District for at least 3 out of the last 5 years (does not have to be continuous).
  • You currently live in Lichfield District and have done so for at least 2 years
  • You currently work in Lichfield District either on a permanent or temporary contract running for a minimum of 6 month
  • You have a written offer of permanent full-time work in Lichfield District.
  • You have a parent currently living in Lichfield District and has done so for at least 5 years.
  • If you are aged over 55 you have a son or daughter, or other close family member (brother or sister) currently living in Lichfield District and has done so for at least 5 years.

Note:
This local criteria is set by the local council and can change at anytime.

Tenure

Leasehold

Lease length

990 years from new

Availability and pricing

Plot Number Open Market Price Share Available Share Price % Rent on Unsold Rent *PCM Service Charge *PCM Availability Key Information Document
60 TBC % TBC 2.75% TBC TBC Coming soon Not Available
61 TBC % TBC 2.75% TBC TBC Coming soon Not Available
62 TBC % TBC 2.75% TBC TBC Coming soon Not Available
63 TBC % TBC 2.75% TBC TBC Coming soon Not Available

You can only apply for these homes once they are released for sale.

Avoid missing out, register your interest here and we’ll email you upon release-
REGISTER for Shared Ownership Updates

Utilities

Electricity Supply: To be confirmed

Water Supply: To be confirmed

Gas Supply: To be confirmed

Sewerage: Mains

Heating: Gas central heating

Connectivity

Broadband
  • To be confirmed
Mobile signal/coverage
  • To be confirmed

Energy Certificate Rating

To be confirmed

Energy Performance Certificate (EPC) / Predicted Energy Assessment (PEA)

Important

Rights & Easements: None that we are aware of at the time of publishing

Restrictions: yes

Details:

Important Restrictions for Shared Ownership Properties, this is by no means an exhaustive list.  

No Extensions or to alter the external appearance of the property: Extensions or external alterations to the property are not permitted within the first 5 years. Following this time, you will require your landlord’s permission prior to considering any extensions or alterations. 

Rotary Airer Restrictions: Rotary airers are not allowed at the front of the properties. 

Vehicle and Parking Restrictions: No parking of heavy goods vehicles, nor Commercial Vehicles, caravans, boat trailers, or similar vehicles or un-road worthy vehicles or  private motor vehicles/cycles over 3000kg and over two metres in hight are not permitted to be parked on any part of the estate. 

Animal Restrictions: Not to breed, feed or keep poultry, pigeons, or birds of prey or any other animals, other than normal domestic pets, which you will require the Landlords permission to keep. 

Landscaping Restrictions: Trees or shrubs included in the landscaping scheme must not be removed. 

Machinery Restrictions: Only domestic machinery is allowed; no other types of machinery should be kept on the property. 

Satellite Dish Restrictions: Satellite dishes must not be erected at the front of the property. 

Not to leave a dustbin or other refuse container: On the property so as to be visible from the road, other than on the night before or day of collection. 

Flood Risk: Flood Risk Zone 1

Planning Permission: Yes

Coalfield Mining Area: To be confirmed

Council Tax Band

To be confirmed

Predicted Council Tax Band is C-E (subject to confirmation by the Valuation Office Agency (VOA) post-completion)
For further information on council tax with Shropshire Council click this link

Location

Site plan

How do I apply?

You can only apply for these homes once they are released for sale.

To avoid missing out, register your interest here and we’ll email you upon release-
REGISTER for Shared Ownership Updates

For more information on the “Steps to buying a shared ownership home” with us, click ‘here’.

Buying shares that are affordable.
Before you can apply to buy a shared ownership home with Severn Homes part of Homes Plus, you will need to undertake a no-obligation, initial financial assessment with a financial advisor to ascertain the maximum share you can afford.

Initial Financial Assessment- Are you eligible?
We work closely with ‘The Mortgage People’ (TMP) they will help you complete the initial financial assessment.
You can get a free ‘Initial Assessment’ by following this LINK or calling 0800 488 0814.
TMP are open, Monday to Friday 9am-5pm or via “Live Chat” until 8pm weekdays and between 10am-4pm on a Saturday.
TMP will email us the outcome of your initial financial assessment based on your preferred development and plot.
A member of our sales team will then contact you to confirm the outcome of the initial assessment and advise you of the next steps.

Note: This free initial financial assessment is essential whether you’re applying for a mortgage or purchasing your shares outright with cash. This will show you what share you can afford to apply for and is free. There may be a charge when you proceed to apply for a mortgage.

First Come, First Served.
Properties are sold on a first come, first served basis. Therefore, to avoid missing out, don’t delay, apply today.
The plots we are offering on this development have not been funded by Homes England. No application will be given priority and all applications will be considered on a first come, first serve basis.

Some plots are sold ‘off plan’ and viewings may not be available straight away and until the initial financial assessment has been passed.

For more information contact our sales team Monday to Friday via [email protected].

Note:
1) Additional information will be available in the Key Information Documents 1, 2 & 3.
2) A financial assessment is required for those requiring a mortgage and cash purchasers.
3) These plots are sold off plan. The ‘anticipated’ build completion date of January/February 2026 is a guide and should not be relied upon until a fixed date has been given.

More information about shared ownership can be found here.
Remember, failure to pay your rent, service charge, or mortgage could mean your home is at risk of repossession.
Severn Homes is part of the Homes Plus Group.