Shared Ownership

(Plots 279 & 280) The Lilies, Bicton Heath. Both Plots Reserved!

Back to all Shared Ownership

Address/Development name

The Lilies, Wingfield Road, Bicton Heath, Shrewsbury SY3 8HA

Price

£62,500 (25% Share)

Notice

Both Plots Reserved!
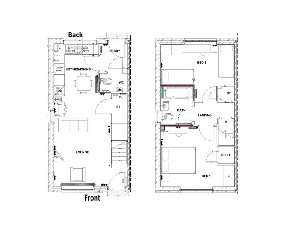
2-bed – Semi-Detached.

Local area

A fantastic Location
Renowned for the birthplace of Charles Darwin, the popular market town of Shrewsbury is steeped in history with unspoilt medieval streets and nearly 800 listed buildings, most notably Shrewsbury Castle.
Major towns and cities in the West Midlands can be reached via the nearby A458 and A5, whilst Shrewsbury Railway Station connects commuters to areas further afield. For the great outdoors, Wales’ infamous Snowdonia National Park makes for a great day out.

Description

Plots 279 & 280
On entering the property is the modern open plan living/dining/kitchen area. A convenient store room and downstairs WC. To the back of the property is the kitchen area which benefits from a single patio door opening out onto the garden, which makes this room a perfect space for entertaining. The gardens come turfed and fenced. Upstairs there are two good sized bedrooms and a family bathroom.  These energy-efficient homes are heated throughout with gas central heating, and they also come with solar panels. You will have 2 off-road parking spaces and a car charging point.

Note:
Floor plans–for left/right-handed plots the layout may mirror the image.
Some images used are for illustration purposes only and may not show the exact property.

For more information please email the sales team [email protected].

Property type

Semi-detached house

Property construction

Brick and Block with pitched tiled roof

Bedrooms

2

Parking

2 off-road parking space

Property features

2-bedrooms. Modern open plan lounge/kitchen/diner. Built-in oven, hob and extractor hood. Fridge/Freezer. Washer/Dryer. Flooring to kitchen area, downstairs WC and family bathroom. Flooring to all other areas included (Carpets) Convenient separate downstairs WC. Family bathroom. Private turfed and fenced garden. Solar Panels. 2 off-road parking spaces. 1 Standard car charging point. NHBC new build warranty Approx. Gross Internal Floor Area- 69.58m2.

Rooms

  • Lounge
  • Kitchen/diner
  • Separate downstairs WC
  • Family bathroom

Accessibility/Adaptations

No

Staircasing allowed

Yes up to 80% maximum

Grant funded

No

Local connection

Yes

The local connection criteria is at least one of the following: 

A person who has a strong tie to Shropshire, covering a period of 3 of the past 5 years either through living in the area, having a strong family connection or working in the area. Evidence is required.

Tenure

Leasehold

Lease length

125 years from new

Availability and pricing

Plot Number Open Market Price Share Available Share Price % Rent on Unsold Rent *PCM Service Charge *PCM Availability Key Information Document
279 £250,000 25% £62,500 2.75% £429.69 £17.50 Reserved KID1
280 £250,000 40% £100,000 2.75% £343.75 £17.50 Reserved KID1

Note:
*PCM- per calendar month.
Shares advertised are a guide, having a financial assessment will show what share you can afford and will need to apply for.

Minimum starting share available is 25%.
There is maximum staircasing restriction on these plots, meaning you can buy up to a maximum of 80% share. You can reach a maximum of 80% ownership in these homes. As a result, you will not own the freehold at any point.
More information about staircasing can be found through this link.

A minimum of 5% deposit is required to apply for any of our shared ownership homes. A larger deposit may be required from applicants with adverse credit to mitigate risk and demonstrate commitment to homeownership.

Utilities

Electricity Supply: E.ON Energy

Water Supply: Severn Trent Water

Gas Supply: No gas supply

Sewerage: Mains

Heating: Electric air source heat pump

Connectivity

Broadband
  • BT
Mobile signal/coverage
  • EE
  • Three
  • Vodafone
  • O2

Energy Certificate Rating

B

Energy Performance Certificate (EPC) / Predicted Energy Assessment (PEA)

Important

Rights & Easements: None that we are aware of at the time of publishing

Restrictions: yes

Details:

Important Restrictions for Shared Ownership Properties, this is by no means an exhaustive list.  

No Extensions or to alter the external appearance of the property: Extensions or external alterations to the property are not permitted within the first 5 years. Following this time, you will require your landlord’s permission prior to considering any extensions or alterations. 

Rotary Airer Restrictions: Rotary airers are not allowed at the front of the properties. 

Vehicle and Parking Restrictions: No parking of heavy goods vehicles, nor Commercial Vehicles, caravans, boat trailers, or similar vehicles or un-road worthy vehicles or  private motor vehicles/cycles over 3000kg and over two metres in hight are not permitted to be parked on any part of the estate. 

Animal Restrictions: Not to breed, feed or keep poultry, pigeons, or birds of prey or any other animals, other than normal domestic pets, which you will require the Landlords permission to keep. 

Landscaping Restrictions: Trees or shrubs included in the landscaping scheme must not be removed. 

Machinery Restrictions: Only domestic machinery is allowed; no other types of machinery should be kept on the property. 

Satellite Dish Restrictions: Satellite dishes must not be erected at the front of the property. 

Not to leave a dustbin or other refuse container: On the property so as to be visible from the road, other than on the night before or day of collection. 

By purchasing a shared ownership home, you agree to comply with these restrictions. These measures are in place to preserve the aesthetics and community standards of the development. For further details or questions, please contact our sales team via [email protected].

Flood Risk: Flood Risk Zone 1

Planning Permission: Yes

Coalfield Mining Area: none that we're aware of

Council Tax Band

Estimated B-D

Predicted Council Tax Band is B-D (subject to confirmation by the Valuation Office Agency (VOA) post-completion).
For further information on Council tax with Shropshire can be found here.

Location

How do I apply?

For more information on the “Steps to buying a shared ownership home” with us, clickhere‘.

Buying shares that are affordable.
Before you can apply to buy a shared ownership home with Severn Homes part of Homes Plusyou will need to undertake a no-obligation, initial financial assessment with a financial advisor to ascertain the maximum share you can afford.

Initial Financial Assessment- Are you eligible?
We work closely with ‘The Mortgage People’ (TMP) they will help you complete the initial financial assessment.
You can get a free ‘Initial Assessment’ by following this LINK or calling 0800 488 0814.
TMP are open, Monday to Friday 9am-5pm or via “Live Chat” until 8pm weekdays and between 10am-4pm on a Saturday.
TMP will email us the outcome of your initial financial assessment based on your preferred development and plot.
A member of our sales team will then contact you to confirm the outcome of the initial assessment and advise you of the next steps.

Note: This free initial financial assessment is essential whether you’re applying for a mortgage or purchasing your shares outright with cash. This will show you what share you can afford to apply for and is free. There may be a charge when you proceed to apply for a mortgage.

First Come, First Served.
Properties are sold on a first come, first served basis. Therefore, to avoid missing out, don’t delay, apply today.
The plots we are offering on this development have not been funded by Homes England. No application will be given priority and all applications will be considered on a first come, first serve basis.

Some plots are sold ‘off plan’ and viewings may not be available straight away and until the initial financial assessment has been passed.

For more information contact our sales team Monday to Friday via [email protected] or call Luke on 07485 393813 (Monday to Friday 9am-5pm)

Note:
1) Additional information is available in the Key Information Document 3 to view this click this link. Key Information Document 2 will be issued before the reservation fee is paid.
2) A financial assessment is required for those requiring a mortgage and cash purchasers.

More information about shared ownership can be found here.
Remember, failure to pay your rent, service charge, or mortgage could mean your home is at risk of repossession.
Severn Homes is part of the Homes Plus Group.