Shared Ownership

(Plot’s 79 & 80) Hortons Keep, Burleyfields- Both now gone!

Back to all Shared Ownership

Address/Development name

Horton's Keep, Burleyfields, Stafford ST16 1GN

Price

£108,000 (40% Share)

Notice

Plot’s now gone!
3-bed, Semi-detached.

Local area

Recently developed area of Burleyfields in Stafford, Horton’s Keep is a stunning new development that enjoys a prime location, offering the perfect blend of beautiful surroundings and easy access to essential amenities.
Situated just a short distance from the heart of Stafford, home owners can explore the town’s historic charm and excellent dining options.
The town centre is about 5.8 miles away from Horton’s Keep and hosts a vibrant mix of shops, boutiques, and supermarkets, providing ample retail therapy opportunities. Stafford also offers an Odeon Luxe, Ten Pin Bowling and Gatehouse Theatre for entertainment. The development is well-connected to major road networks, including the A34 and M6, providing convenient travel options to nearby cities and towns.

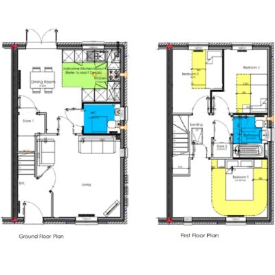
Description

To the front of the properties is the hallway with access to lounge. At the back of the open plan kitchen/diner area, which is a great space to be with the family, there is the patio doors opening out onto the garden, this is a perfect area for entertaining and the garden area comes turfed and fenced. Downstairs is also the a store cupboard and convenient WC. Up-stairs there are three good sized bedrooms and a family bathroom. Vinyl flooring is provided to the kitchen area, downstairs WC and family bathroom. These energy-efficient homes are heated throughout with gas central heating and they also come with solar panels. The properties also benefit from having 2 off road parking spaces.

Note:
Floor plans–for left/right-handed plots the layout may mirror the image.
These homes have been built by Charles Church.
Some images used are for illustration purposes only and may not show the exact property.

For more information please check with the sales team before reserving your chosen plot.

 

Property type

Semi-detached house

Property construction

Traditional - block and beam

Bedrooms

3

Parking

2 off-road parking space

Property features

3-bedrooms. Open plan, kitchen/dinner. Seperate lounge. Built-in oven, hob and extractor hood. Flooring to kitchen area, downstairs WC and family bathroom. Convenient separate downstairs WC. Family bathroom. Private turfed and fenced garden. Gas central heating system. 2 off-road parking spaces. 1 car charging point. NHBC new build warranty. Approx. Gross Internal Floor Area- 86.Sqm

Rooms

  • Lounge
  • Kitchen/diner
  • Separate downstairs WC
  • Family bathroom

Accessibility/Adaptations

No

Staircasing allowed

Yes up to 100%

Grant funded

No

Local connection

No

Tenure

Leasehold

Lease length

125 years from new

Availability and pricing

Plot Number Open Market Price Share Available Share Price % Rent on Unsold Rent *PCM Service Charge *PCM Availability Key Information Document
79 £270,000 40% £108,000 2.75% 371.25 £25.38 SSTC KID1
80 £270,000 40% £108,000 2.75% 371.25 £32.11 SSTC KID1

Note:
*PCM- per calendar month.
Shares advertised are a guide, having a financial assessment will show what share you can afford and will need to apply for.
There is no maximum stair-casing restriction on these plots. Meaning, you could buy more shares up to 100% over time. More information about stair-casing can be found at this link.

Utilities

Electricity Supply: British Gas

Water Supply: Severn Trent Water

Gas Supply: British Gas

Sewerage: Mains

Heating: Gas central heating

Connectivity

Broadband
  • BT
  • Virgin Media
Mobile signal/coverage
  • EE
  • Vodafone
  • O2

Energy Certificate Rating

B

Energy Performance Certificate (EPC) / Predicted Energy Assessment (PEA)

Important

Rights & Easements: None that we are aware of at the time of publishing

Restrictions: yes

Details:

Important Restrictions for Shared Ownership Properties, this is by no means an exhaustive list.  

No Extensions: Extensions to the property are not permitted within the first 5 years. Following this time, you will require your landlord’s permission prior to considering any extension.

Rotary Airer Restrictions: Rotary airers are not allowed at the front of the properties.

Vehicle and Parking Restrictions:  No parking of heavy goods vehicles, caravans, boat trailers, commercial vehicles, or similar vehicles over 1.5 Tonne or exceeding 2 meters in height are not permitted.

Animal Restrictions: Keeping poultry, pigeons, or birds of prey is not allowed.

Landscaping Restrictions: Trees or shrubs included in the landscaping scheme must not be removed.

Machinery Restrictions: Only domestic machinery is allowed; no other types of machinery should be kept on the property.

Satellite Dish Restrictions: Satellite dishes must not be erected at the front of the property.

Not to leave a dustbin or other refuse container: on the property so as to be visible from the road, other than on the night before or day of collection.

Not to carry out Trade or Business on the property. 

Flood Risk: Flood Risk Zone 1

Planning Permission: Yes

Coalfield Mining Area: none that we're aware of

Council Tax Band

Estimated B-D

Predicted Council Tax Band is B-D (subject to confirmation by the Valuation Office Agency (VOA) post-completion).
For further information on council tax with Stafford Borough Council click this link.

Location

Site plan

How do I apply?

For more information on the “Steps to buying a shared ownership home” with us, click here.

Buying shares that are affordable.
Before you can apply to buy a shared ownership home with Severn Homes part of Homes Plus, you will need to undertake a no-obligation, initial financial assessment with a financial advisor to ascertain the maximum share you can afford.

Initial Financial Assessment- Are you eligible?
We work closely with ‘The Mortgage People’ (TMP) they will help you complete the initial financial assessment.
You can get a free ‘Initial Assessment’ by following this LINK or calling 0800 488 0814.
TMP are open, Monday to Friday 9am-5pm or via “Live Chat” until 8pm weekdays and between 10am-4pm on a Saturday.
TMP will email us the outcome of your initial financial assessment based on your preferred development and plot.
A member of our sales team will then contact you to confirm the outcome of the initial assessment and advise you of the next steps.

Note: This free initial financial assessment is essential whether you’re applying for a mortgage or purchasing your shares outright with cash. This will show you what share you can afford to apply for and is free. There may be a charge when you proceed to apply for a mortgage.

First Come, First Served.
Properties are sold on a first come, first served basis. Therefore, to avoid missing out, don’t delay, apply today.
The plots we are offering on this development have not been funded by Homes England. No application will be given priority and all applications will be considered on a first come, first serve basis.

Some plots are sold ‘off plan’ and viewings may not be available straight away or until the initial financial assessment has been passed.

If there is anything else we can help with, please do not hesitate to contact our sales team Monday to Friday 8.30-5pm via [email protected].
Or call Gail from Severn Homes on 07976 924963 (Monday to Friday excluding Tuesdays)

Note:
1) Additional information is available in the Key Information Document 3 to view this click this link. Key Information Document 2 will be issued before the reservation fee is paid.
2) A financial assessment is required for those requiring a mortgage and cash purchasers.
3) The anticipated build completion date of  July/August 2025 is a guide and should not be relied upon until a fixed date has been given.

More information about shared ownership can be found here.

Remember, failure to pay your rent, service charge, or mortgage could mean your home is at risk of repossession.
Severn Homes is part of the Homes Plus Group.
Details correct at the time of advertising, April 2025.